ICF (Insulated Concrete Form) homes now possible in the Philippines

If you are from the west US or Canada and wants to move to the Philippines or build a home or a second home here, your first issue might be our climate – temperature and humidity.

The first solution that will come to mind to address our hot tropical climate here is the insulated concrete forms home or ICF or insulated home – insulated walls and roof. But importing ICF blocks currently is not possible as the ICF companies in the US and Canada cannot ship small orders to the Philippines yet.

Good thing we have local EPS (Expanded Polystyrene) manufacturers here – EPS is the primary material for wall insulations and ICF as it is that white foam material used in ice buckets and refrigerators and is currently the best for this purpose.

Local EPS manufacturers do manufacture two types of EPS the soft type and the industrial heavy duty tough type – and the tough type is the one that we can use for insulating the walls of the ICF homes.

Since the western standard for constructing ICF home is different to the Philippine building code as the local code requires columns and beams – we simply have to insulate the columns and beams for the Philippine ICF home version.

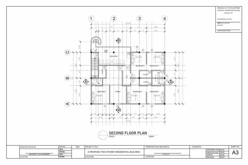
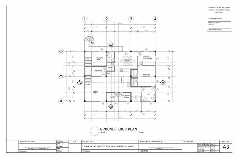
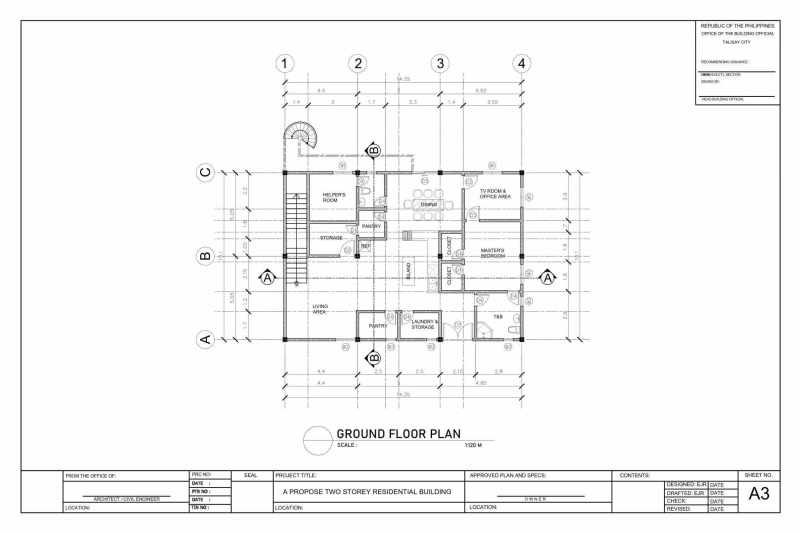
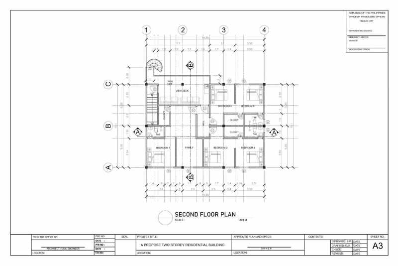
Here’s one ICF home we recently finished in Negros Oriental – pictures below. Just by browsing through the pictures you will already be able to see how an insulated home following western specifications can be built.

The 2 inch EPS foam have to insulate both sides of the walls and the columns. The same material will also be used to insulate the roof and ceilings to be able to build an ice bucket thermally insulted home. The solid concrete wall core have to be at least 5 inches the usual wall thickness in the Philippines.

The ICF – insulated home will require less air conditioning and will not overload your aircon units and your electricity bills.

Please note the heat will come through your roof and walls if your home is not insulated.


Posted

in

by

Comments

Leave a Reply

Your email address will not be published. Required fields are marked *

This site uses Akismet to reduce spam. Learn how your comment data is processed.